Bedrooms 4
Bath/Shower rooms 1
Receptions 2

Contact Christophers Helston

01326 565566

Sithney, Helston

PRICE GUIDE £575,000.00

  • TRADITIONAL FARM HOUSE
  • SET IN APPROXIMATELY SIX ACRES
  • RANGE OF OUTBUILDINGS
  • IN NEED OF UPDATING TO REALISE ITS FULL POTENTIAL
  • LIFESTYLE OPPORTUNITY
  • FREEHOLD
  • COUNCIL TAX BAND D
  • EPC D62

A Four-Bedroom Detached Farmhouse with Outbuildings Set in Approximately Six Acres.

FIRST VIEWINGS TO BE CONDUCTED ON THE AFTERNOON OF 7th JAN 2026 .

Contact us for an appointment.

This substantial four-bedroom detached farmhouse presents a rare opportunity to acquire a characterful rural home offering significant scope for enhancement. The property is complemented by a range of barns and outbuildings, possibly suitable for conversion (subject to the necessary planning consents), making it particularly appealing to those seeking multi-generational living, income potential, or additional residential uses.

The farmhouse offers well-proportioned accommodation arranged over two floors and retains many original features typical of a property of this nature, while providing ample opportunity for modernisation and personalisation to suit individual tastes.

The property is set within approximately six acres of land, offering a wonderful lifestyle opportunity in this highly desirable area of West Cornwall. The land is predominantly overgrown at present, but once cleared would appear ideal for equestrian use, smallholding, or simply enjoying a peaceful and picturesque countryside setting.

The barns are conveniently located close to the farmhouse while retaining their own identity, with potential for conversion or alternative uses, subject to the appropriate consents.

The hamlet of Sithney itself has a church and primary school. More extensive amenities can be found in the nearby town of Helston with national stores, cinema, sports centre, with indoor swimming pool, and both primary and secondary schooling. The coastal town of Porthleven is a short drive away and has many public houses, shops and restaurants nestling around its picturesque historic harbour. National rail links connecting to London Paddington can be found in the town of Penzance.

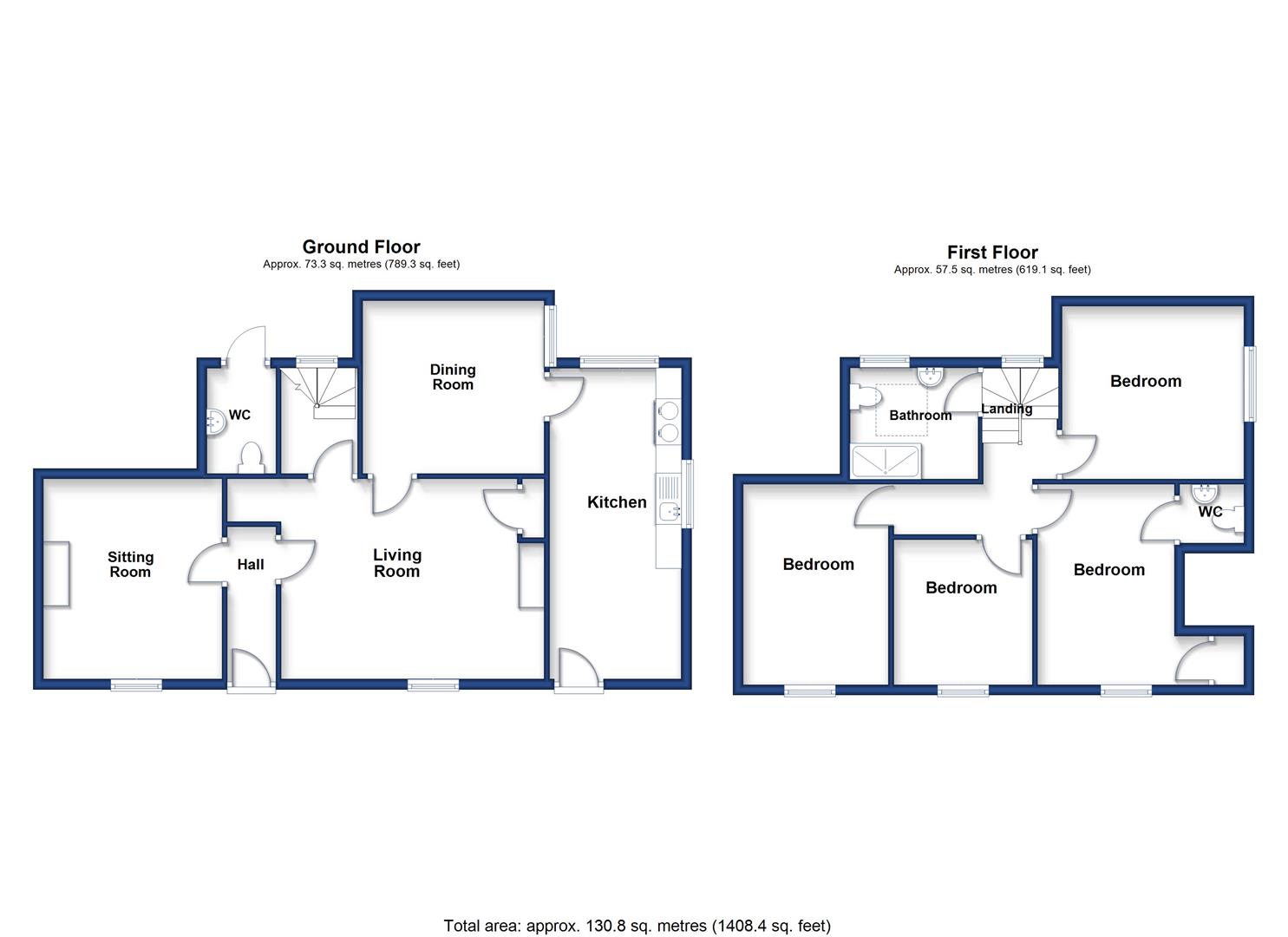
THE ACCOMMODATION COMPRISES (DIMENSIONS APPROX)
PART GLAZED DOOR TO ENTRANCE HALLWAY
With doors to

SNUG
3.8 x 3.5 (12'5" x 11'5")
With sliding sash windows to the front aspect, Victorian style fireplace on a tiled hearth and the room has beamed ceilings.

LOUNGE
3.96 x 3.96 (12'11" x 12'11")
A characterful room with inglenook fireplace, with granite lintel over and woodburner (not tested) set on a tiled hearth. There is a built-in storage cupboard, beamed ceilings, wood effect flooring and a sliding sash window to the front aspect.

DINING ROOM
3.46 x 3.35 (11'4" x 10'11")
With a window to the side aspect, storage cupboard housing the LPG gas boiler and a window to the side aspect with a door to the

KITCHEN
6.06 x 2.54 (19'10" x 8'3")
A wood effect kitchen with stone effect worktop that incorporates a stainless steel sink drainer. There is a pale blue Aga (not tested). The room has windows both to the side and rear aspect and there is a door to the front.

From the lounge, a door leads to an inner hallway with an understairs storage cupboard. There is a turning staircase with a window at the half landing and a door to

SHOWER ROOM
2.90 x 2.18 (including shower cubicle) (9'6" x 7'1
With a walk-in shower cubicle which has an easy clean splashback and shower over, w.c., wash hand basin, skylight window to the rear aspect, shaver socket with light, extractor fan and built-in shelving.

The stairs rise up to a further landing with doors to

BEDROOM ONE
4 x 2.9 (13'1" x 9'6")
With sliding sash windows to the front aspect with views over the fields, built-in wardrobe and a door to

W.C.
With w.c., wash hand basin, shaver socket with light, extractor and tiled effect flooring.

BEDROOM TWO
3.36 x 3.16 (11'0" x 10'4")
With wood effect flooring and a window to the side aspect with views over the yard and field.

BEDROOM THREE
4. x 2.8 (13'1" x 9'2")
With Victorian style fireplace and sash windows to the front aspect, with views over the field.

BEDROOM FOUR
3 x 2.7 (9'10" x 8'10")
With a sliding sash window to the front aspect and there is a loft hatch to the roof space.

OUTSIDE
To the front of the property there is an enclosed wall garden. The property is entered down a private lane, where there is only one other property, leading into a driveway area with a garage

GARAGE
8 x 4.5 (26'2" x 14'9")
With two doors to the front, power, light and a storage area at the rear.

REAR YARD
With parking for multiple vehicles and it leads to two outbuildings.

OUTBUILDING ONE
MAIN ROOM
11 x 4.8 (36'1" x 15'8")
A door to the main room. With two windows to the front aspect, a window to the rear along with a door to

KITCHEN AREA
4.8 x 3.6 (15'8" x 11'9")
With a basic fitted kitchen, with stainless steel sink drainer and an instant water heater over (not tested). There are some storage cupboards and a door and window to the front aspect.

OUTBUILDING TWO
MAIN ROOM
6.4 x 4.4 (20'11" x 14'5")
A door to the main room. With a basic fitted kitchen, with worktops that incorporate a stainless steel sink drainer, with cupboards and drawers under, wall cupboards over and a stairwell which leads to a mezzanine area. A further door to

ROOM TWO
4.5 x 4.1 (14'9" x 13'5")
With a door to the front aspect. On the end of this building there is a further animal husbandary area, where there are a number of stalls and a door to the front aspect. From the yard the property opens out onto the fields.

LAND
In the region of six acres and currently quite overgrown but relatively level enjoying a far reaching rural outlook.

AGENTS NOTE
Not a dispute as such but a neighbour suggested the soakaway to the property wasn't efficient enough and as such an agreement was reached whereby the neighbour purchased part of the adjacent field from the owner on the basis that the neighbour would replace the soakaway. This has been legally transferred but the neighbour died and to date there is a breach of covenant and without the neighbour's personal representatives dealing with the covenant/soakaway, the neighbour's property could suffer from flooding at times due to insufficient soakaway.

SERVICES
Mains water and electricity and private drainage.

COUNCIL TAX
Council Tax Band D

what3words
encloses.tapers.passion

DATE DETAILS PREPARED.
12th December 2025

MOBILE AND BROADBAND
To check the broadband coverage for this property please visit -
https://www.openreach.com/fibre-broadband
To check the mobile phone coverage please visit -
https://checker.ofcom.org.uk/

PROOF OF FINANCE - PURCHASERS
Prior to agreeing a sale, we will require proof of financial ability to purchase which will include an agreement in principle for a mortgage and/or proof of cash funds.

ANTI-MONEY LAUNDERING
We are required by law to ask all purchasers for verified ID prior to instructing a sale

DISCLAIMER

IMPORTANT AGENTS NOTES: Christophers Estate Agents for themselves and the vendors or lessors of this property confirm that these particulars are set out as a general guide only and do not form part of any offer or contract. Fixtures, fittings, appliances and services have not been tested by ourselves and no person in the employment of Christophers Estate Agents has any authority to give or make representation or warranty whatsoever in relation to the property. All descriptions, dimensions, distances and orientation are approximate. They are not suitable for purposes that require precise measurement. Nothing in these particulars shall be taken as implying that any necessary building regulations, planning or other consents have been obtained. Where it is stated in the details that the property may be suitable for another use it must be assumed that this use would require planning consent. The photographs show only certain parts and aspects of the property which may have changed since they were taken. It should not be assumed that the property remains exactly the same. Intending purchasers should satisfy themselves by personal inspection or otherwise of the correctness of each of the statements which are given in good faith but are not to be relied upon as statements of fact. If double glazing is mentioned in these details purchasers must satisfy themselves as to the amount of double glazed units in the property. The property location picture is supplied by a third party and we would respectfully point out that although they are regularly updated the area surrounding the property or the property itself may have changed since the picture was taken.

What's My House Worth?

FREE & Confidential market appraisal for selling purposes

I would like you to contact me to arrange a free, no obligation, market appraisal for selling purposes.