Bedrooms 4
Bath/Shower rooms 2
Receptions 2

Contact Christophers Helston

01326 565566

Sithney, Helston

PRICE GUIDE £575,000.00

  • VERSATILE HOME WITH INTERCONNECTING ONE-BEDROOM SELF-CONTAINED ANNEXE
  • PREVIOUSLY CONFIGURED AS A FOUR BEDROOM FAMILY HOME
  • PERFECT FOR MULTI-GENERATIONAL LIVING OR INCOME POTENTIAL
  • ENCLOSED GARDENS AND EXTENSIVE PARKING
  • SELF CONTAINED CHALET AND USEFUL WORKSHOP
  • APPROXIMATELY 3.5 ACRES OF LAND WITH RURAL AND TOWNSCAPE VIEWS
  • FREEHOLD
  • COUNCIL TAX D
  • EPC F25

The property is currently arranged as a two double bedroom home with an interconnecting cosy one-bedroom annexe, ideal for multi-generational living, guest accommodation or those seeking an income stream.

Previously a four-bedroom house, it could easily be reconfigured back into one substantial family home if desired. (subject to any necessary consents being obtained)

Inside, the property feels warm and welcoming, with plenty of natural light and character features including multiple log burners adding to the cosy atmosphere.

The gardens wrap around the property, offering private and secure areas perfect for families, pets and entertaining, while a useful workshop and store provide excellent space for hobbies or business use. There is also ample parking at the front of the property and a discreetly positioned chalet to the rear of the property.

The additional asset is the 3.5 acres of land which is accessed from the house with a shared lane. The land enjoys far-reaching countryside and distant Helston town views. This creates a wonderful sense of space and freedom to enjoy catching a morning sunrise.
Whether you're considering a smallholding, keeping animals, or simply want room for children to explore and enjoy the outdoors, the possibilities are endless.

This is far more than just a home - it's a chance to create a lifestyle, with space to grow, adapt and make your own.

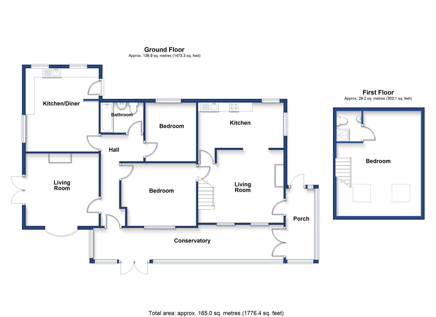
THE ACCOMMODATION COMPRISES (DIMENSIONS APPROX)
DOOR TO
SUN ROOM
10.44m x 1.42m (34'3" x 4'8")
offering access to the utility/side porch and to the:

HALLWAY
With radiator and doors to various rooms.

SITTING ROOM
4.06m x 4.06m (13'4" x 13'4")
A lovely cosy but light dual aspect room with Bow style window to front and patio doors to side accessing the garden. Log burner set on granite hearth and radiator.

KITCHEN/BREAKFAST ROOM
4.75m x 3.78m (15'7" x 12'5")
A dual aspect room with tiled floor, fitted with a range of base units with work surfaces over, space and point for fridge/freezer, space and plumbing for slimline dishwasher, Chef Master Level range oven featuring four ovens, five gas burners including a wok burner and a dual electric plate (available by separate negotiation), window to the side overlooking the garden and two windows to rear and door to the rear garden. Wall mounted Worcester gas boiler, space for table, larder style cupboard and log burner.

BEDROOM ONE
3.76m x 3.28m (12'4" x 10'9")
With window to rear and radiator.

BEDROOM TWO/DINING ROOM
3.73m x 3.45m (12'3" x 11'4")
With windows to front, radiator and log burner. A versatile room currently being used by the present vendors as a bedroom but also ideal as a dining room/second reception room.

BATHROOM
2.36m x 1.83m (7'9" x 6' )
With tiled floor and suite comprising of a bath with tiled surround and Mira Go electric shower over, pedestal wash hand basin, low level W.C., obscured window to rear and chrome effect ladder style radiator.

UTILITY/SIDE PORCH
4.04m x 1.83m (13'3" x 6')
A useful space with tiled floor, space and plumbing for washing machine, windows to front and side and connects to the front sun porch. Door to

ANNEXE SITTING ROOM
4.72m x 4.11m (15'6" x 13'6")
A lovely cosy room with two windows to front, radiator, log burner set in stone surround, stairs rising to the first floor, connecting door to the bedroom/dining room in the main property and concertina doors and door to

KITCHEN/BREAKFAST ROOM
4.72m x 2.57m (15'6" x 8'5")
A bright dual aspect room with windows to side and rear fitted with base and wall units with work surfaces over and ceramic sink with mixer tap, space and point for gas oven, free standing butcher block style unit providing for additional storage and work surface space, space and point for under counter fridge freezer.

FIRST FLOOR
BEDROOM
5.18m x 4.75m(max measurements restricted head hei
With radiator, access to eaves storage, two velux style windows to front and door to

EN SUITE SHOWER ROOM
1.65m x 1.35m (5'5" x 4'5")
With tiled floor, tiled cubicle housing Mira Jump electric shower, low level W.C., wash hand basin in vanity unit and velux style window.

OUTSIDE
To the front of the property is a large gravelled parking area offering off road parking for multiple vehicles. There are enclosed garden areas to the both the side and the rear of the property these are mostly laid to lawn with the garden to the side being particularly attractive and providing for a patio seating area and generous area of lawn. There are a variety of useful storage areas including a log store. To the rear of the property is a:

WORKSHOP
4.95m x 3.15m (16'3" x 10'4")
With work bench, power and light and windows to side and front. To the rear of the workshop is a

UTILITY/STORE
3.12mx 1.45m (10'3"x 4'9")
A useful storage area with power currently used by the present vendors as a freezer room.

CHALET
Sited in a separate area to the rear is a one bedroom chalet which we have not inspected internally. This enjoys its own separate garden area.

THE LAND
Extending to approximately 3.5 acres is a field offering good quality land with fantastic far reaching rural and townscape views suitable for a variety of uses. The current owners have created a produce area including a growing area and glass house area. There are also a variety of useful outbuildings, including a Shepherds hut which may be available by separate negotiation.

AGENTS NOTE
Please be aware that there is a public footpath that runs down the side of the field.

SERVICES
Private drainage, septic tank, LPG gas fired central heating, mains water and electricity.

WHAT3WORDS
browsers.crawled.employers

ANTI-MONEY LAUNDERING
We are required by law to ask all purchasers for verified ID prior to instructing a sale

COUNCIL TAX
Council Tax Band D.

DATE DETAILS PREPARED.
17th February, 2026.

MOBILE AND BROADBAND
To check the broadband coverage for this property please visit -
https://www.openreach.com/fibre-broadband
To check the mobile phone coverage please visit -
https://checker.ofcom.org.uk/

PROOF OF FINANCE - PURCHASERS
Prior to agreeing a sale, we will require proof of financial ability to purchase which will include an agreement in principle for a mortgage and/or proof of cash funds.

DISCLAIMER

IMPORTANT AGENTS NOTES: Christophers Estate Agents for themselves and the vendors or lessors of this property confirm that these particulars are set out as a general guide only and do not form part of any offer or contract. Fixtures, fittings, appliances and services have not been tested by ourselves and no person in the employment of Christophers Estate Agents has any authority to give or make representation or warranty whatsoever in relation to the property. All descriptions, dimensions, distances and orientation are approximate. They are not suitable for purposes that require precise measurement. Nothing in these particulars shall be taken as implying that any necessary building regulations, planning or other consents have been obtained. Where it is stated in the details that the property may be suitable for another use it must be assumed that this use would require planning consent. The photographs show only certain parts and aspects of the property which may have changed since they were taken. It should not be assumed that the property remains exactly the same. Intending purchasers should satisfy themselves by personal inspection or otherwise of the correctness of each of the statements which are given in good faith but are not to be relied upon as statements of fact. If double glazing is mentioned in these details purchasers must satisfy themselves as to the amount of double glazed units in the property. The property location picture is supplied by a third party and we would respectfully point out that although they are regularly updated the area surrounding the property or the property itself may have changed since the picture was taken.

What's My House Worth?

FREE & Confidential market appraisal for selling purposes

I would like you to contact me to arrange a free, no obligation, market appraisal for selling purposes.