Image not available
Bedrooms 4
Bath/Shower rooms 2
Receptions 2

Contact Christophers Helston

01326 565566

Parc Eglos, Helston

PRICE GUIDE £460,000.00

  • BEAUTIFULLY PRESENTED 3/4 BEDROOM DETACHED BUNGALOW
  • IDEALLY SITUATED FOR THE TOWN & AMENITIES
  • FINISHED TO A VERY HIGH STANDARD
  • DRIVEWAY & DOUBLE TANDUM GARAGE
  • DELIGHTFUL GARDENS
  • MAINS GAS HEATING & DOUBLE GLAZING
  • COUNCIL TAX D
  • EPC D62
  • FREEHOLD

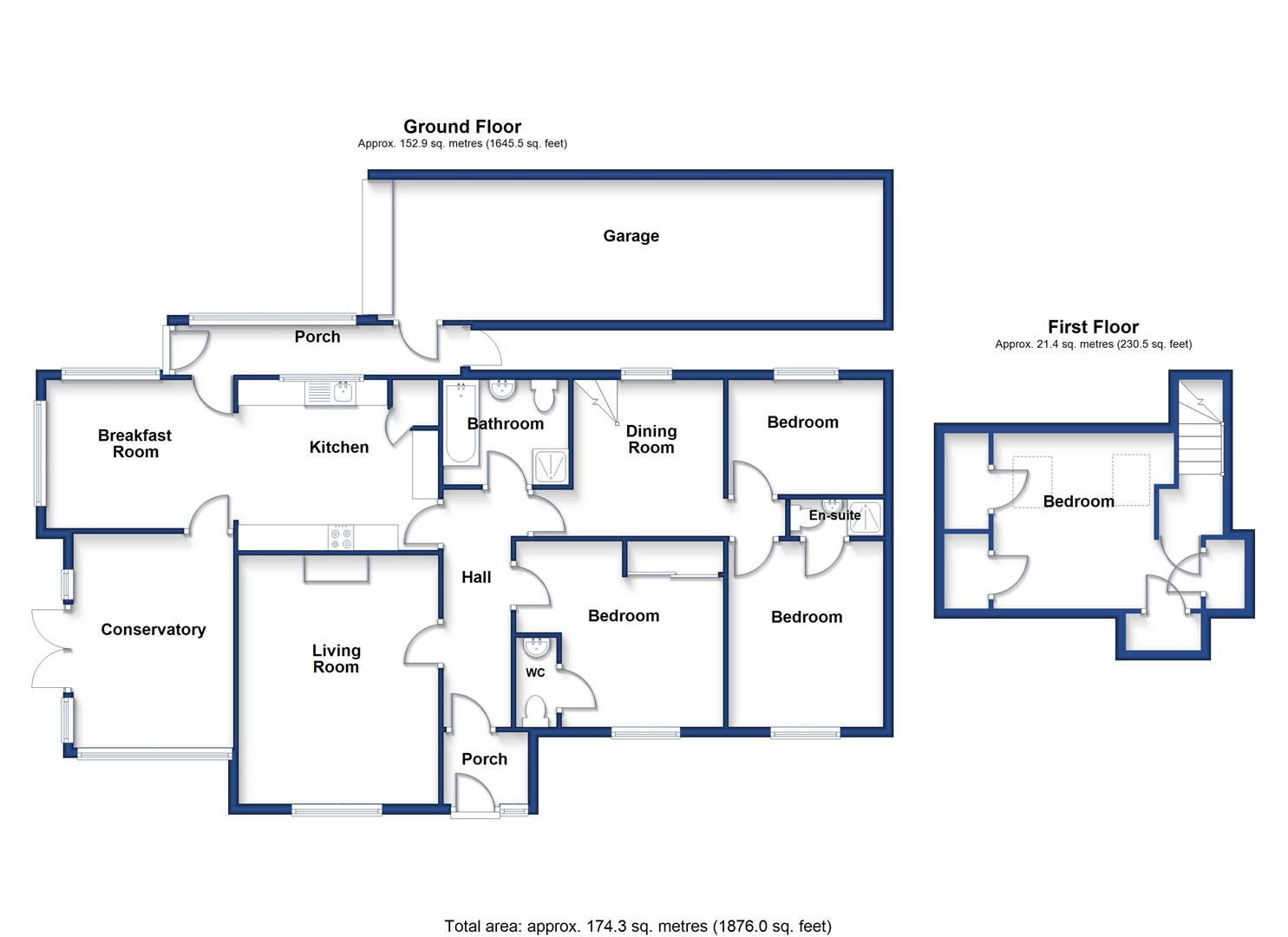
An opportunity to acquire this beautifully presented 4 bedroom detached bungalow, perfectly positioned for Helston’s excellent amenities. Offering high-quality finishes throughout and an impressive level of versatility, this home is ideal for those seeking style, comfort, and convenience in this popular locations.

The property is presented to a superb standard and benefits from mains gas central heating and double glazing. The interior features an entrance porch, hallway, a super kitchen/diner designed for modern living, a generous conservatory, a comfortable lounge, separate dining room, and three well-proportioned bedrooms, including a master with en suite. The beautifully appointed family bathroom completes the ground floor, while the first floor offers a versatile fourth bedroom or study—perfect for home working or guest accommodation.

Outside, the home truly shines. A private driveway provides ample parking and leads to the double tandem garage. The gardens have been thoughtfully landscaped to create an attractive, low-maintenance area, featuring stylish hard landscaping, winding resin pathways, and matching Mediterranean-inspired beds that offer year-round interest and colour.

Helston serves as the gateway to the stunning Lizard Peninsula and provides an excellent range of amenities including national retailers, a cinema, leisure centre with indoor swimming pool, and a a selection of shops and eateries. The beautiful Penrose Estate links the town to the coast and offers miles of picturesque walks and cycle routes—perfect for enjoying the very best of this beautiful part of Cornwall.

THE ACCOMMODATION COMPRISES (DIMENSIONS APPROX)
.

LEADED FEATURE PART GLAZED DOOR AND MATCHING SIDE
ENTRANCE PORCH
With tiling to the floor, feature leaded obscured window to the side aspect and smart wooden glazed doors to the inner hallway with doors to -

LOUNGE
4.8 x 3.95 (15'8" x 12'11" )
A pleasant room with window to the front aspect and living flame gas fire sitting on a marble effect hearth and surround.

KITCHEN/DINER
7.61 x 2.9 (24'11" x 9'6")
A wonderful, light-filled family space featuring a stylish white Shaker-style kitchen with chrome handles and luxurious black granite worktops. The kitchen is beautifully appointed, incorporating a Stoves four-burner hob with matching granite splashback, a sink and drainer with swan-neck mixer tap, and granite upstands. There is an excellent range of base cupboards, drawer units, and wall cabinets, together with a Stoves built-under oven, integrated fridge freezer, refrigerator, and dishwasher. A particularly useful large corner cupboard houses the Worcester gas boiler, offers plumbing for a washing machine, and provides additional shelving for storage.

The room enjoys windows to the side and rear, offering a lovely elevated outlook across the rooftops of Helston and stretching towards open countryside. Attractive floor tiling runs throughout and is complemented by thermostatically controlled underfloor heating, ensuring comfort year-round.

At the dining end of the room, there is a recessed area—currently used to mount a TV—and a remote-control air-conditioning unit for added comfort. Doors lead through to the conservatory, as well as to the rear porch and rear hallway. The space is well lit by a combination of recessed downlighters and an attractive pendant light.

CONSERVATORY
4.24 x 3.21 (13'10" x 10'6")
A super airy space with views over other properties and the townscape of Helston onwards to open countryside and benefiting from under floor heating.

From the inner hallway there is a door to

DINING ROOM
3.00m x 2.90m (including the turn staircase) (9'10
Window to the rear aspect. Opening to a further hallway area and doors to

BEDROOM ONE
3.6 x 3.30 (11'9" x 10'9")
With a window to the front aspect overlooking the garden and built-in wardrobes with hanging rails and drawers, sliding doors which are part mirrored, door to

EN SUITE SHOWER ROOM
With tiled and glazed walk-in shower cubicle with Red Ring electric shower over.

BEDROOM TWO
3.73 x 3.69 (12'2" x 12'1")
With window to the front aspect overlooking the garden and triple sliding door wardrobes with an array of hanging and shelf space with door to

W.C.
With wash hand basin set in a vanity unit with storage under, tiling and mirror over. Close coupled W.C., further mirror with shaver socket with light over, storage cupboard, extractor and tiling to both the walls and floor.

BEDROOM THREE
3.02 x 2.25 (9'10" x 7'4")
Window to the rear aspect and wardrobe with mirrored sliding doors with rail and shelving.

BATHROOM
A beautifully appointed bathroom featuring a stylish suite comprising a bath with coordinating tiled panel , a tiled and glazed shower cubicle with electric shower, and a wash hand basin set within a contemporary vanity unit offering useful drawer storage beneath. The W.C. benefits from a concealed dual-flush cistern, while a mirrored medicine cabinet with touch-control lighting and an additional mirror over the bath. The room is finished with attractive floor-to-ceiling tiling, a chrome ladder-style radiator, and a window to the side aspect. A series of recessed downlighters provide a warm, modern ambiance. Benefiting from underfloor heating.

From the dining room a turning staircase leads to the first floor landing with a door to

BEDROOM FOUR
3.76 x 3 (12'4" x 9'10")
With limited headroom at its eaves, four eaves storage cupboard areas along one wall, there is built-in storage.

From the kitchen a part glazed door leads out to the rear entrance and porch area with feature leaded glazed window to the side aspect, large window with roof lights to the side aspect. Tiling to the steps and floor which leads down to an area which houses a sink unit with tiled splashback and service door back to-

GARAGE
9.48 x 2.85 (31'1" x 9'4")
This two car tandem garage has an up and over electric door, power, light, pitched roof with eaves storage and some shelving to the rear.

ANTI-MONEY LAUNDERING
We are required by law to ask all purchasers for verified ID prior to instructing a sale

COUNCIL TAX
Council Tax Band D.

MOBILE AND BROADBAND
To check the broadband coverage for this property please visit -
https://www.openreach.com/fibre-broadband
To check the mobile phone coverage please visit -
https://checker.ofcom.org.uk/

PROOF OF FINANCE - PURCHASERS
Prior to agreeing a sale, we will require proof of financial ability to purchase which will include an agreement in principle for a mortgage and/or proof of cash funds.

DISCLAIMER

IMPORTANT AGENTS NOTES: Christophers Estate Agents for themselves and the vendors or lessors of this property confirm that these particulars are set out as a general guide only and do not form part of any offer or contract. Fixtures, fittings, appliances and services have not been tested by ourselves and no person in the employment of Christophers Estate Agents has any authority to give or make representation or warranty whatsoever in relation to the property. All descriptions, dimensions, distances and orientation are approximate. They are not suitable for purposes that require precise measurement. Nothing in these particulars shall be taken as implying that any necessary building regulations, planning or other consents have been obtained. Where it is stated in the details that the property may be suitable for another use it must be assumed that this use would require planning consent. The photographs show only certain parts and aspects of the property which may have changed since they were taken. It should not be assumed that the property remains exactly the same. Intending purchasers should satisfy themselves by personal inspection or otherwise of the correctness of each of the statements which are given in good faith but are not to be relied upon as statements of fact. If double glazing is mentioned in these details purchasers must satisfy themselves as to the amount of double glazed units in the property. The property location picture is supplied by a third party and we would respectfully point out that although they are regularly updated the area surrounding the property or the property itself may have changed since the picture was taken.

What's My House Worth?

FREE & Confidential market appraisal for selling purposes

I would like you to contact me to arrange a free, no obligation, market appraisal for selling purposes.